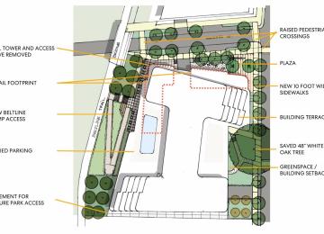
Image October 14, 2025 Images: Transformative Beltline project scores neighborhood support Designs in sharper focus for Reynoldstown venture by Star Metals District developer
Image August 20, 2025 Vision for Reynoldstown project over Beltline starts becoming clearer Developer behind Star Metals District, partners aim to finalize designs along Eastside Trail soon
Image May 5, 2025 Star Metals developer sets sights on Eastside Beltline properties Allen Morris Company in talks to help bring long-planned—but expanded—Reynoldstown build to fruition