A project that aims to remake blocks in one of Atlanta’s hottest Beltline real estate neighborhoods is one step closer to reality. 

A majority of Reynoldstown Civic Improvement League voters on Monday gave their formal blessing to revised plans put forward by The Allen Morris Company, the Florida-based developer of Star Metals District in West Midtown, for a mixed-use project at 205 Holtzclaw St., alongside a popular Beltline segment. 

At the RCIL meeting, 60 percent voted in favor of the project, 25 percent voted against, and 15 percent of voters abstained. 

Refined renderings and site plans presented to the neighborhood this week help paint the picture of how the 205 Holtzclaw St. development and a related new building to the north would look and function.  

The two Reynoldstown blocks in question, looking north along Holtzclaw Street in January 2025. Google Maps

205 Holtzclaw (at left) and extent of the two blocks of development in question, as shown from facades not fronting the Beltline. Submitted; Allen Morris Company/ Perkins & Will

With the Reynoldstown project, Allen Morris is hoping to branch into Atlanta’s eastside in a high-profile way.

The company is partnering with John and Luke Morrison of Morrison Properties and Nathan Metzger and Don Brown of Metzger & Co., both metro Atlanta-based companies, to develop 205 Holtzclaw St. and 930 Mauldin St. into a multifamily project with retail components along the Southeast Trail (formerly Eastside Trail), just north of Memorial Drive. Both sections of the project are being designed by architecture firm Perkins & Will, which helped draw up many aspects of the Beltline itself. 

RCIL’s earlier input has helped refine concepts for the 205 Holtzclaw St. section of the site, with a goal of keeping it in line with the scale of the previously entitled building on the northern block, Allen Morris reps have said. 

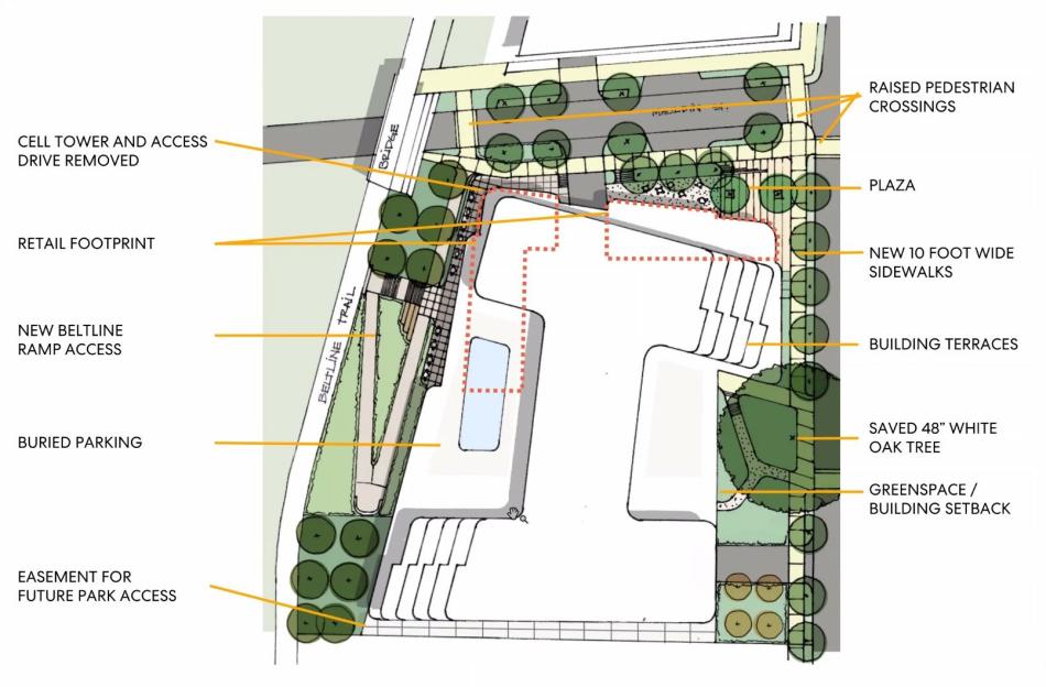
Most recent breakdown of the 205 Holtzclaw section of the project, the southernmost block in question. A planned retail plaza is shown at top. Submitted; Allen Morris Company/ Perkins & Will

Updated plans for a retail plaza and Beltline ramp connection, up from Fulton Terrace. Submitted; Allen Morris Company/ Perkins & Will

We checked in today with Allen Morris reps to learn what next steps will be, following the RCIL vote, and we’ll update this story with any additional details that come. 

The development team told Urbanize Atlanta in August they expect to finalize designs and start seeking entitlements with the City of Atlanta this year. 

The outlook for construction calls for breaking ground in either late 2026 or early 2027, with completion forecasted about 22 months after that, officials previously said. 

Plans call for roughly 350 multifamily units overall. Given the project’s Beltline proximity, Inclusionary Zoning requirements will apply, but it hasn’t been determined if that will mean 15 percent of units will be capped at 80 percent of the area median income, or 10 percent of housing options at 60 percent AMI, officials said in August. 

Morrison Properties owns the southernmost parcel. Today, that houses an empty lot and low-rise, warehouse-style buildings formerly home to the DooGallery. 

Elsewhere, the same Z-shaped designs are in place for the more northern block, 930 Mauldin St., that initially started coming to light in 2022. 

Looking north, the 205 Holtzclaw section of the properties in question, with the Beltline at left and the growing Stein Steel community at top. Google Maps

Where retail would be placed at Mauldin Street/Fulton Terrace, with a new Beltline entry ramp at right. Submitted; Allen Morris Company/ Perkins & Will

Metzger & Co.’s development plans for the Mauldin Street property have been proposed, off and on, for more than 17 years, long before the paved Beltline existed.

Elsewhere in Atlanta, Allen Morris, a national developer, is planning the final phases of its growing Star Metals District, following the recent debut of the upscale Stella at Star Metals tower. About two miles west of there, the company is putting together a massive Bankhead project along the Beltline’s Westside Trail that would also claim underused, formerly industrial properties.  

Allen Morris opened another Atlanta development, the Bryn House project in North Druid Hills, in 2023.

Find more context and the latest designs presented in Reynoldstown this week in the gallery above. 

...

Follow us on social media: 

Twitter / Facebook/and now: Instagram  

• Reynoldstown news, discussion (Urbanize Atlanta)