Could the old adage, “Keep it simple, stupid” finally work in this case?
For the fourth time since 2022, a new idea has come to light for turning two empty buildings into active uses at a Midtown corner that doesn’t get much more high-profile: Piedmont Avenue and 12th Street, across the street from a main entrance to Piedmont Park.
Perlis Realty & Investments brought plans before the Midtown Development Review Committee this week for turning 1084 Piedmont Ave. (the longtime former home of Skate Escape) and a vacant brick structure next door (1094 Piedmont Ave.) into two different restaurants fronting Atlanta’s signature park.
Perlis Realty’s renovation plans are the simplest to emerge for reviving the two buildings over the past four years.
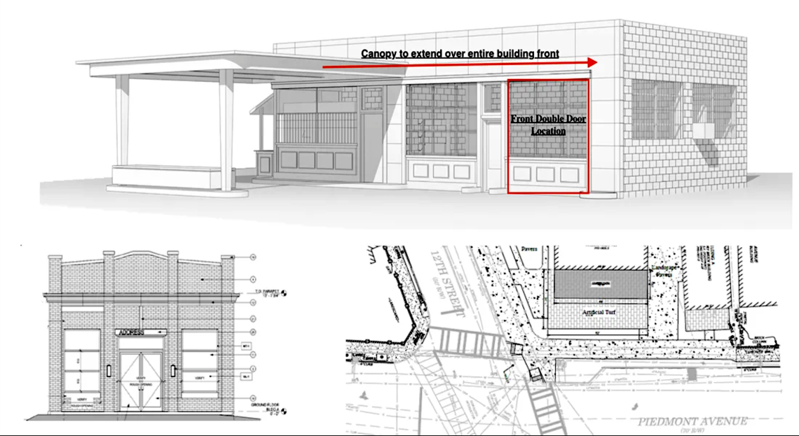
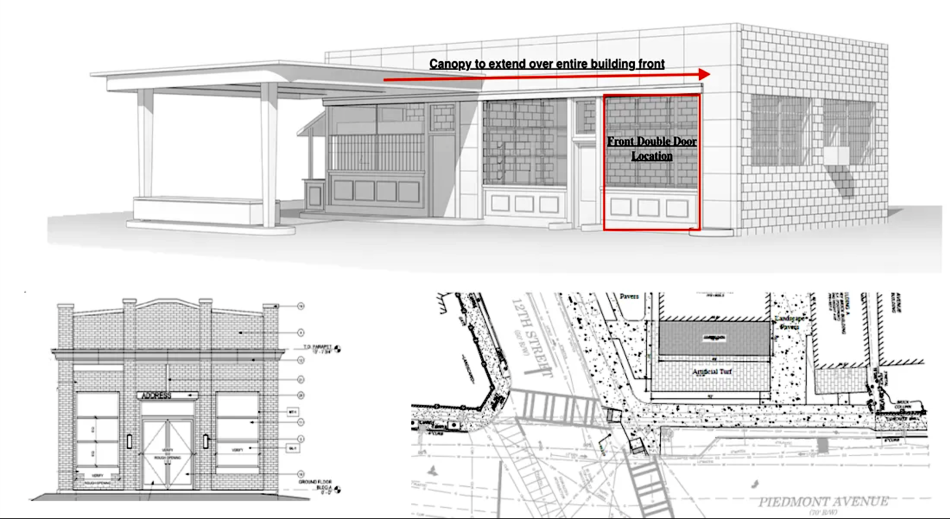
Facade plans for both Piedmont Avenue buildings in question recently reviewed by Midtown Development Review Committee. Perlis Realty & Investments; via Midtown DRC
Back in 2022, DAS BBQ unveiled designs for converting the corner building to its third Atlanta location at the time, complete with a rooftop hangout, but those plans fizzled. More recently, an adaptive-reuse, retro-style makeover and a glassy mixed-use redevelopment were also proposed but didn’t move forward.
Perlis Realty plans to start its adaptive-reuse work at the northwest corner of the intersection this year. The concept calls for two restaurants that would share outdoor dining space in front of and between buildings. (A site plan shows part of the current parking lot becoming artificial turf).
Neither building would have designated onsite parking. That’s allowable via a special exception approved in 2023, per Midtown Alliance.
The former Skate Escape building—the oldest roller skate and skateboard shop in Atlanta, until its owner retired a few years ago—would feature an extended canopy along the full building frontage and a new entry double door. Plans call for a breakfast and lunch concept there.
The north building would feature a full-service restaurant, following extensive repairs, per Perlis Realty’s submission.
Overview of the two vacant properties in question, across the street from a main Piedmont Park entrance. Perlis Realty & Investments;
According to Brian Carr, Midtown Alliance spokesperson, Perlis Realty reps haven’t disclosed the buildings’ restaurant operator because a deal has not been finalized.
Midtown DRC members this week applauded the idea of a restaurant revival for the spaces but raised concerns about bike parking, signage, the outdoor dining patio, planter boxes, and retention of mature trees onsite.
Specifically, recommendations call for one or more bike racks to be installed as part of the patio, and Midtown DRC members also sought confirmation that all outdoor dining will be closed by 11 p.m. No outdoor speakers can be installed unless granted by a special exception or variance, the committee stressed.
Carr said the plans are not expected to come before Midtown DRC again but that developers will submit updates via email.
“Timing for the eateries to open is dependent on too many factors for our staff to predict,” Carr noted via email.
Find more context and visuals in the gallery above.
...
Follow us on social media:
Twitter / Facebook/and now: Instagram
• Midtown news, discussion (Urbanize Atlanta)

