The Trust at Grove Park

Under Construction Last updated 4/27/2026
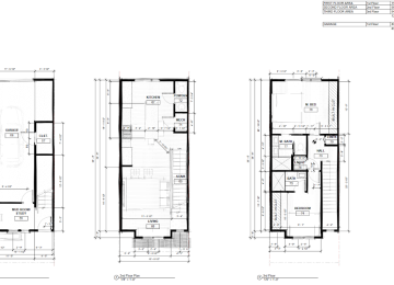
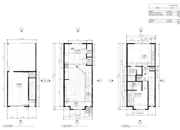
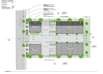
Project Uses Townhomes
Floors (Above Ground) 3
Podium No
Construction Type Type 3, 4 & 5

Companies

Developer Dream Home Today
The Atlanta Land Trust
3384 Residential
You have X free articles remaining this month.
Subscribe today!
Subscribe