A batch of new housing designed to retain permanent affordability is nearing completion near Atlanta’s largest greenspace.
The Trust at Grove Park, a 14-unit townhome venture, is on pace to deliver in June or July, according to affordable housing agent and developer Michael Oden, Dream Home Today founder and managing broker.
Prices are expected to start around $250,000, as Oden tells Urbanize Atlanta.
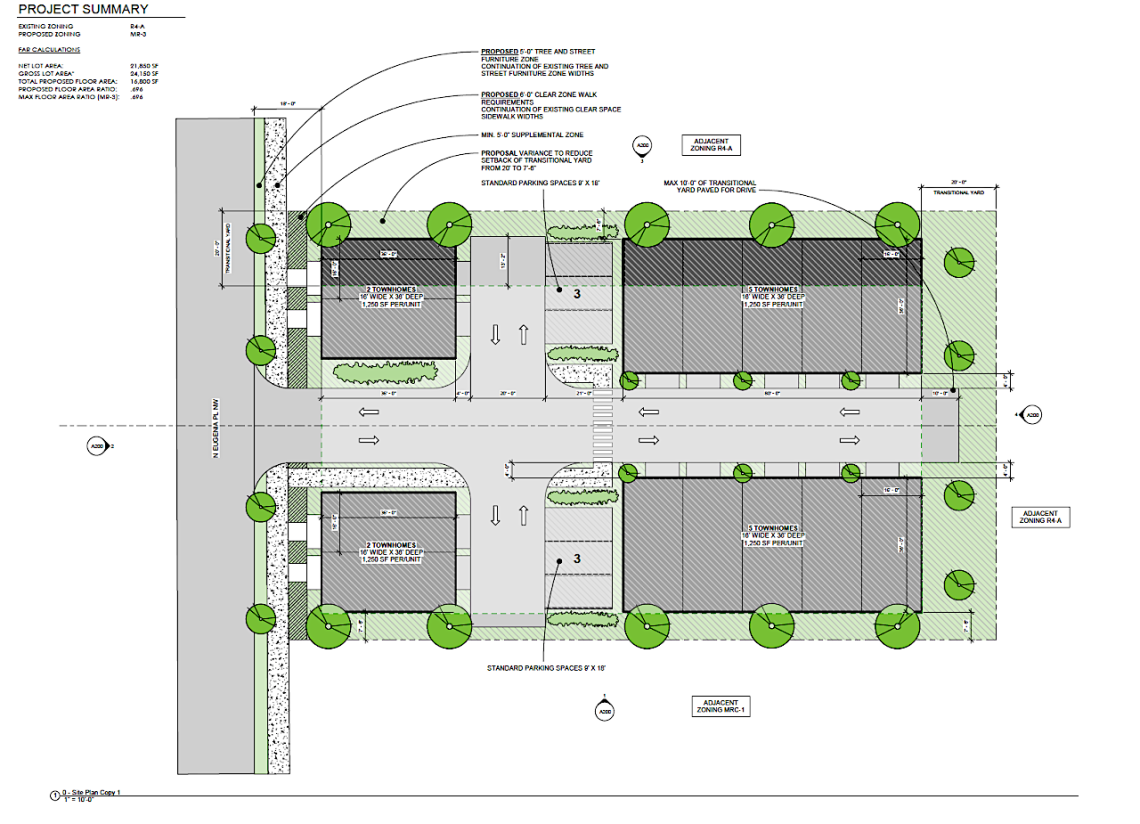
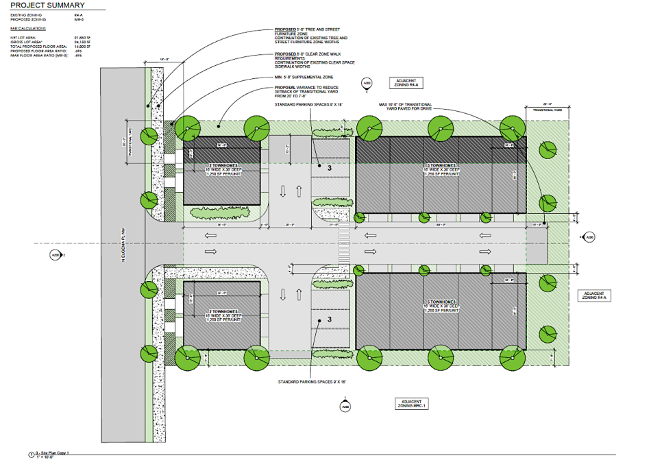
The 885 N. Eugenia Place project has claimed the site of a vacant single-family home and its large lot off Hollywood Road, around the corner from the new Atlanta Fire and Rescue Department Fire Station No. 22.
Trust at Grove Park's 14-unit site plan, just north of Hollywood Road. The Atlanta Land Trust; 3384 Residential
Other landmarks in the area include Shirley Clarke Franklin Park, Bankhead Seafood (a restaurant from Atlanta rappers Killer Mike and T.I.), and Grove Park’s reviving commercial district. The Proctor Creek Greenway is another nearby perk.
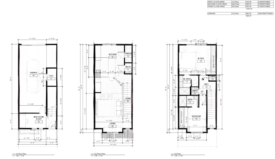
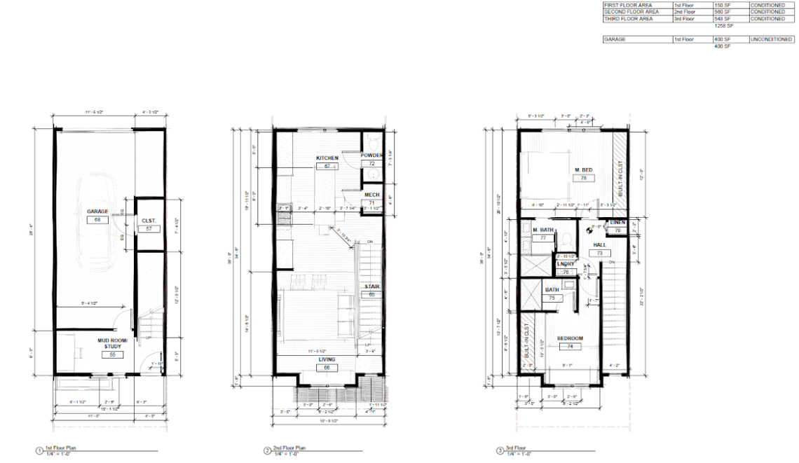
All three-story Trust at Grove Park townhomes will offer two bedrooms and two full bathrooms (plus a second-story powder room). Square footage options are roughly 1,180 and 1,250 in two different floorplans.
The project is a partnership between Atlanta Land Trust and 3384 residential, with special conditions for resales.
All units are reserved for households earning less than 80 percent of the Area Median Income—or roughly $91,000 total for a family of four today.
Overview of the 885 N. Eugenia Place NW site, as seen when nearby Atlanta Fire and Rescue Department Fire Station No. 22 was under construction.Google Maps
According to Atlanta Land Trust officials, buyers must also qualify for a mortgage with one of their approved lenders, who work with providers of down-payment assistance. Anyone interested in applying must first attend a Community Information Session, held the second Saturday of each month.
“We want everyone to experience the joys of living in a home they love, while also staying within their financial means,” reads a project summary. “That’s why The Trust at Grove Park exists—to bring luxury and affordability together in perfect harmony.”
To retain what Atlanta Land Trust calls permanent affordability, the townhomes will operate under the Community Land Trust model. That works like this:
Community Land Trusts are nonprofit organizations that channel public and private funding into affordable housing opportunities within specific geographic areas for low- and moderate-income households.
“By creating homes that remain permanently affordable,” reads the Grove Park project’s description, “CLTs provide successful homeownership opportunities for generations of lower-income families and are an effective strategy to reduce displacement of legacy residents.”
Find more context and images in the gallery above.
Proximity of the Trust at Grove Park project to Westside landmarks including Shirley Clarke Franklin Park (formerly Westside Park) and Bankhead Seafood. Google Maps
...
Follow us on social media:
Twitter / Facebook/and now: Instagram
• Grove Park news, discussion (Urbanize Atlanta)


