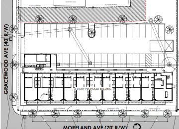
Image March 3, 2026 Images: Now finished, Gracewood claims long-vacant corner near EAV Brick-clad Ormewood Park project dangles free Edison Electric Bicycles as incentive for leases
Image July 10, 2025 Images: Ormewood Park development nears finish, offers free e-bikes The Gracewood project is partnering with Edison Electric Bicycles for unique renter incentive