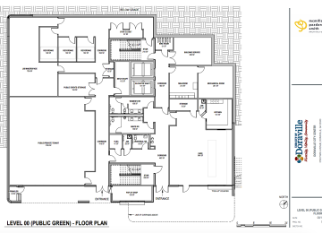
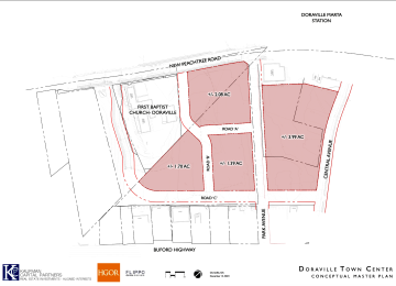
The People’s Building

Approved Last updated 9/15/2025
Project Uses Office
Floors (Above Ground) 4
Podium No
Construction Type Type 3, 4 & 5

Companies

Developer City of Doraville
Kaufman Capital Partners
Architect McMillan Pazdan Smith Architecture
General Contractor Choate Construction
You have X free articles remaining this month.
Subscribe today!
Subscribe