[UPDATE: 6:06 p.m., Dec. 16: Outdated renderings were provided for an earlier version of this story. Current renovation plans compiled by Westside Future Fund are now included immediately below.]
Current plans for the Yellow Store's revised facade, set to begin and finish work in 2026. Courtesy of Westside Future Fund
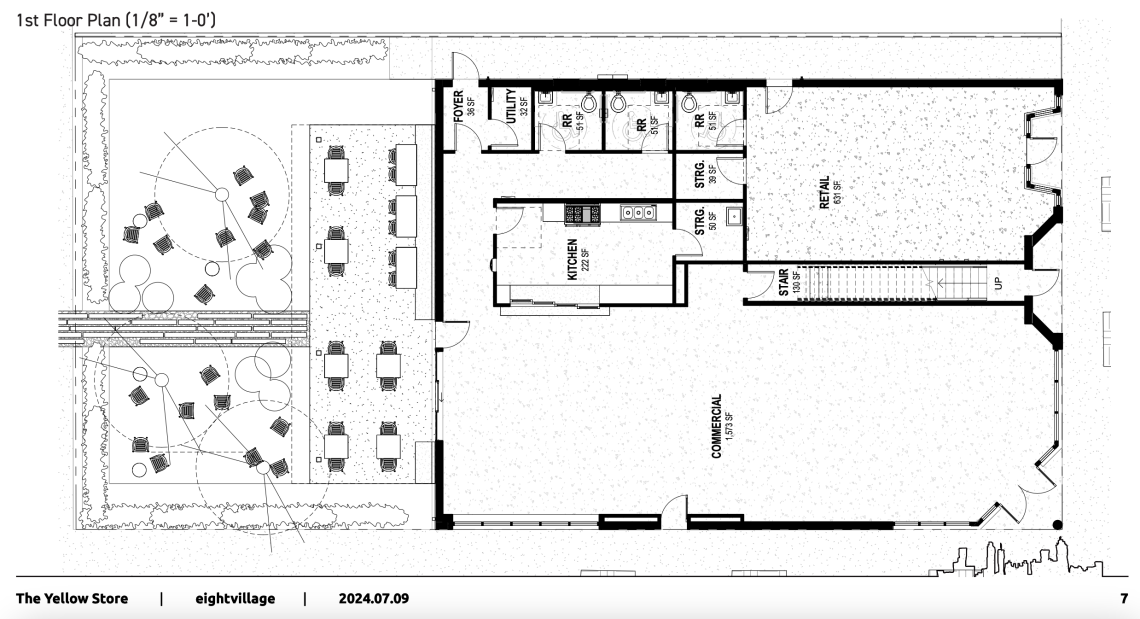
Breakdown of the Yellow Store's first-floor layout in English Avenue. Courtesy of Westside Future Fund
Plans are coming into sharper focus for a unique Westside adaptive-reuse project that aims to inject commercial life and business opportunities into residential streets.
During an annual fundraiser event last month, Atlanta-based law firm Morris, Manning & Martin raised more than $32,000 for a local nonprofit committed to neighborhood revitalization, Westside Future Fund.
The funding will bring WFF’s first commercial real estate project—the long-planned, mixed-use remake of English Avenue landmark the Yellow Store—closer to breaking ground, officials recently announced.
Following the grant award, project leaders provided Urbanize Atlanta with a preview of plans and visuals detailing what the century-old Yellow Store is now expected to become.
Earlier plans, now scrapped, for the Yellow Store's exterior revival where James P. Brawley Drive meets Cameron M. Alexander Boulevard.Courtesy of Westside Future Fund
Located at 500 James P. Brawley Drive, due west of downtown, the early 1900s building was originally operated by the Cantrell family as Cantrell Sodas and Sundaes, “a beloved soda shop and ice cream parlor with a 60-year history” that served as a central gathering hub during English Avenue’s residential peak, per WFF. Ground floor uses have also included a record store and shoe retailer, with four residential apartments upstairs.
“The Cantrell family was known for their deep community service—offering free meals during holidays and shelter to those in need,” reads a WFF recap of the structure’s history.
As the neighborhood grappled with disinvestment, the Yellow Store became known as a magnet for criminal activity. WFF purchased the two-story property in 2019 for $600,000 and set out to revitalize it, as part of broader efforts “to restore and honor the history and future of English Avenue,” per the agency.
WFF’s latest plans for the Yellow Store call for 3,000 square feet of retail space on the ground floor, with a patio and courtyard where customers would have coffee and snacks. Elsewhere at the base level will be two retail stalls, one serving fresh food and the other soft goods, such as towels, napkins, and clothing. (Fresh food would be sourced from the Historic Westside Gardens initiative, which is based a few blocks away.)
Upstairs, WFF is planning to renovate rundown spaces into four “high-quality, affordable housing” apartments, per the agency.
No construction timeline for the Yellow Store project has been specified. A formal call for potential businesses to operate there was issued four years ago. [UPDATE: 4:53 p.m., Dec. 10: Project reps send word the project is now scheduled to finish in late 2026.]
According to WFF officials, the nonprofit has rehabbed or built and sold 12 homes along James P. Brawley Drive in English Avenue since 2021. It also owns 40 rental units on the street, and has plans for adding 15 new or rehabbed homes along the corridor within a few blocks of the Yellow Store.
In fall 2024, the Invest Atlanta Board of Directors approved a $750,000 Westside Tax Allocation District grant for the Yellow Store project as part of a round of funding for initiatives that aim to lift up lower-income neighborhoods.
According to WFF, the building appears in the 1911 Sanborn Map for that section of Atlanta, and its size of 6,000 square feet listed on the original permit remains unchanged. It was built of blonde multi-wythe brick masonry, per the organization.
Today, the Yellow Store’s location is about four blocks west of the Westside Beltline Connector trail that links downtown Atlanta to the mainline Beltline loop. It would join a half-dozen multifamily projects in the neighborhood—ranging from a few residential units to nearly 400—that have recently delivered or are in the pipeline now.
Find more context and imagery in the gallery above.
...
Follow us on social media:
Twitter / Facebook/and now: Instagram
• English Avenue news, discussion (Urbanize Atlanta)





