A common refrain among Atlanta urbanists, especially younger ones, is that the city lacks enough for-sale, amenitized housing in walkable areas that doesn’t cost a million bucks.
But providing that type of product isn’t a guarantee buyers will flock in.
Case in point, to a degree, is Ten 5 Summerhill. It’s a boutique townhome venture that claimed an empty Georgia Avenue corner lot in one of Atlanta’s buzziest new food-and-beverage districts, a place that’s undergone night-day changes over the past eight years.
Since it started coming to market about 14 months ago, Ten 5 Summerhill has won the top award in the multifamily/mixed-use category at the AIA Atlanta Residential and Hospitality Design Awards. Some townhomes have been discounted by more than $150,000. Meanwhile, on the same street, the roster of noteworthy restaurants continues to grow.
Still, just five townhomes on the Summerhill corner have been claimed—in more than a year. That’s what marketing materials cheerily describe as “half-sold.”
How the Ten 5 Summerhill project's Georgia Avenue facade turned out on a previously vacant corner. Josh Green/Urbanize Atlanta/2024
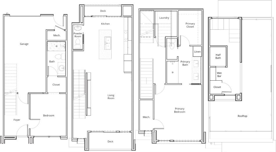
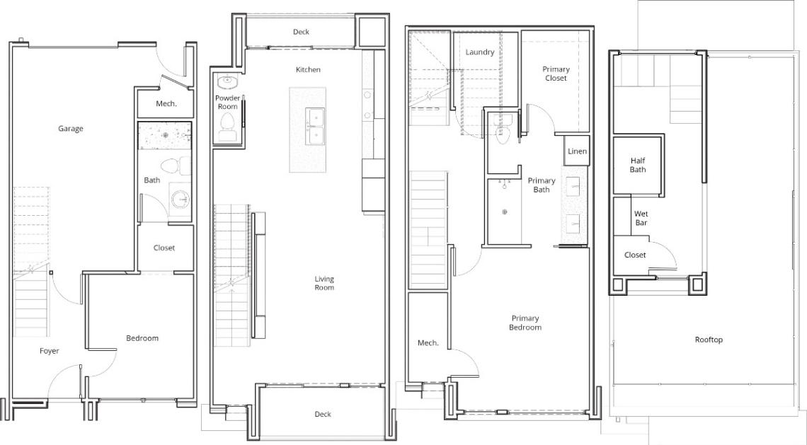
A newly released two-bedroom, two-bathroom floorplan at Ten 5 Summerhill asking $635,000. Keller Williams Intown Atlanta
The Xmetrical-designed project delivered 10 townhomes at the southwest corner of Georgia Avenue’s intersection with Martin Street, adding to Summerhill’s residential explosion near the Atlanta Braves' former stadium. Prices now range from $615,000 to $665,000.
Square footages at Ten 5 Summerhill range from 1,513 to 1,865. All floorplans count two bedrooms, two full bathrooms, two half-bathrooms, and rooftop decks. (Can Atlantans not live without a third bedroom, at least? Is the ask still too high? Are tariffs to blame?)
The fee-simple townhomes require HOA fees of $450 per quarter that cover landscaping, common-area maintenance, trash, and exterior painting, among other services. Listing agent Sara Lee Parker of Keller Williams Intown Atlanta and her team are offering buyers an option to use preferred lenders and receive up to $15,000 in closing credits.
Some of Ten 5 Summerhill’s four-story floorplans are unique in that they swap garages for studio apartments at street level. A small lot with reserved, off-street parking is tucked behind the townhomes, masked from public view.
The location is across the street from Phoenix II Park, a 7.3-acre community greenspace, and a block east of Georgia Avenue’s slate of eats and shops.
Some unit perks include a rooftop “retreat” with a half-bath, flex space, roof deck, kitchenette, wet bar, and beverage fridge. Floating vanities, floor-to-ceiling Pella window, gas cooking, quartz counters, and ancillary balconies have been cited as additional draws.
The .3-acre corner site had been vacant—as almost all buildings on Georgia Avenue used to be—for well over a decade.
Rooftop deck atop the two-bedroom model, which was listed at $749,000. Wes Cummings, RealKit Photography; courtesy of Keller Williams Intown Atlanta
Intown Builders, a frequent Xmetrical collaborator, is also involved in the Ten 5 Summerhill project, per building permit records. The developer had previously planned a six-story, 21-unit condo building at the corner property with commercial spaces at street level but later changed course. JB Development Partners, Bespoke Developments, and South City Residential were also part of the development team.
In the gallery above, find more context and a look at Ten 5 Summerhill exteriors and interiors.
Over the past seven years, formerly ghostly Georgia Avenue has added a full portfolio of restaurants, retail, and service-related businesses—both in revived old buildings and new construction—as part of Carter’s Summerhill development. (Atlanta-based Carter sold a controlling interest in its company to Texas-based Hunt Companies in July.) Those Summerhill businesses join more than 1,200 new apartments and townhomes that have opened in the blocks surrounding Georgia State University’s Center Parc Stadium.
Another residential development nearby that’s not multifamily, Summerhill by Hedgewood, claimed the bulk of three city blocks with about 100 homes, spread across three phases. That project is sold out.
...
Follow us on social media:
Twitter / Facebook/and now: Instagram
• Flashback: Recalling the 'before' version of Summerhill's vibrant strip (Urbanize Atlanta)

