Atlanta’s biggest (and growing) park space could be getting hundreds of new neighbors. 

Developers today brought plans before the Atlanta City Council Zoning Committee for a residential project at 1175 Johnson Road NW that could eventually bring more than 300 new homes to mostly vacant land along the north rim of Shirley C. Franklin Park. 

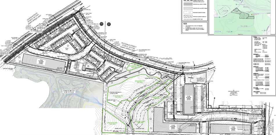
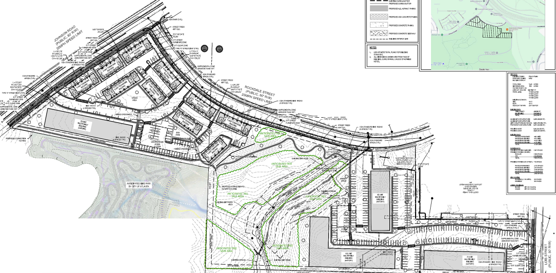
The property owner and developer is listed on city filings as Decatur-based Collaborative Housing Solutions. The company’s multi-phase proposal calls for 14 buildings spread across roughly 13 and ½ acres near Johnson Road’s intersection with West Marietta Street. 

Site plans filed in February show roughly 350 units planned total, including townhomes and denser multifamily dwellings. 

Rough depiction of the 13.5-acre area in question near the north rim of Shirley C. Franklin Park west of Midtown. Google Maps

Collaborative Housing Solutions/Eberly & Associates; via City of Atlanta Office of Zoning and Development

Four different four-story buildings would stand around the site, including one near the edge of the under-construction Bike Park at Shirley C. Franklin Parkper those plans. 

The phased breakdown calls for about 60 townhomes in phase one, spread across 10 buildings with a small greenspace component next door. 

That would be followed by four-story multifamily developments in phase two (roughly 70 units), three (150 units) and finally four (also around 70 units). 

Scope of the roughly 350-unit project off Johnson Road near West Marietta Street. Collaborative Housing Solutions/Eberly & Associates; via City of Atlanta Office of Zoning and Development

Other aspects of site plans include 409 total parking spaces—or 62 more spaces than the city requires, according to filings. 

Developers are asking for the property to be rezoned from a general residential and planned mixed-use development Beltline Overlay designation to one that would allow for multifamily development.

Meeting minutes indicate the housing proposal neighboring Shirley C. Franklin Park has been forwarded to the full Atlanta City Council for review. 

Collaborative Housing Solutions is behind another Westside project in Vine City that calls for remaking underused church land into 70 units of mixed-income housing near Rodney Cook Sr. Park

Closer look at the planned breakdown of multifamily and townhome structures. Collaborative Housing Solutions/Eberly & Associates; via City of Atlanta Office of Zoning and Development

...

Follow us on social media: 

Twitter / Facebook/and now: Instagram  

• Readers ask: Will accessing Atlanta's largest park ever get easier? (Urbanize Atlanta)