As clued-in neighborhood observers have noted, an infill housing project in Reynoldstown illustrates that pricing trends for new homes within whistling distance of popular Atlanta Beltline trails continue to point upward.
It’s also a vivid reminder that a million bucks (or more) doesn’t buy what it used to in Atlanta.
The 109 Chester Ave. SE project came to market last week with Keller Knapp Realty, promising a unique experience “where every line, light, and shadow blur the lines between art and architecture.”
Property records indicate the lot spans just .057 acres total, which would help explain the home’s four-story design and relatively tight footprint. The property in question is south of Wylie Street, about two blocks west of the Beltline’s Eastside Trail, or what’s technically now called the Southeast Trail.
The 109 Chester Ave. property's context in relation to the Beltline, Wylie Street, and other landmarks. Google Maps
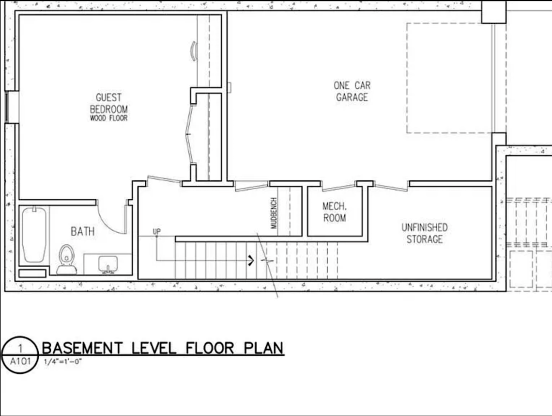
The asking price is $1.25 million. In this case, that buys four bedrooms and three and ½ bathrooms spread across 1,722 square feet, with a one-car garage at the basement level.
According to listings, the project was custom-designed for the lot by Goodman Design Co., with Cox Development on board to build it and Carl Mattison Design handling interiors.
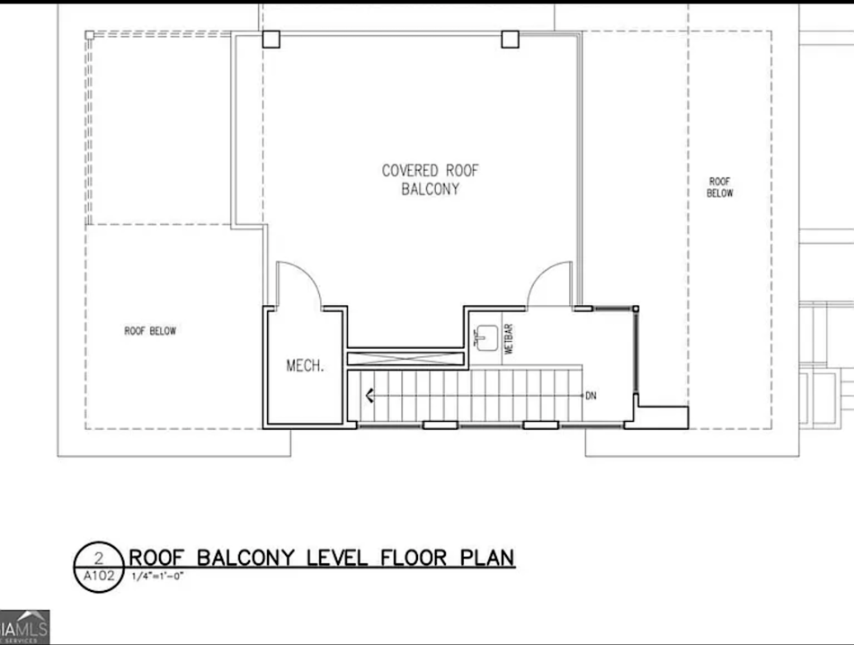
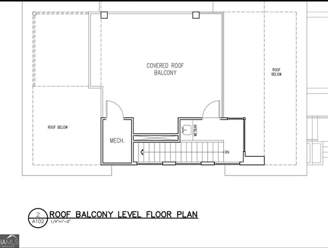
Plans call for more than 600 square feet of outdoor living spaces and covered porches (four total), including a rooftop hangout with a wet bar that’s marketed as having treetop vibes.
Four-story facade in the works for 109 Chester Ave., a unique infill proposal for Reynoldstown. Keller Knapp/Georgia MLS; designs, Goodman Design Co.
Zillow records indicate the home is Reynoldstown’s fourth most expensive listing at the moment. Each pricier listing has substantially more space (north of 3,000 square feet), but all are duplexes and not standalone properties.
Keller Knapp’s website lists the Chester Avenue project as under construction. Here’s a quick look at what’s in store, across all four stories:
Garage and basement-level plans at 109 Chester Ave. Keller Knapp/Georgia MLS; designs, Goodman Design Co.
Plans for the main living level of the Reynoldstown home. Keller Knapp/Georgia MLS; designs, Goodman Design Co.
...
Follow us on social media:
Twitter / Facebook/and now: Instagram
• Photos: 5 years later, where block-altering Reynoldstown project stands (Urbanize Atlanta)

