Exactly how a unique infill project in the center of Kirkwood’s commercial district might look and function is coming into clearer focus.
Atlanta-based developer Stryant plans to turn a standalone restaurant building and parking lot where barbecue concepts had operated for a decade into two restaurants, an office headquarters, and 50 apartments with no subsidies at 1976 Hosea Williams Drive, as company cofounder Stan Sugarman has said.
Demolition plans filed last month with Atlanta’s Department of City Planning are under review. Those call for taking down the existing commercial structure and removing the current parking lot. A land development permit for the current site plan is also under review at the city level.
Those filings—and a site plan on the project’s website—lend a clearer picture of what’s planned beneath the residential units.
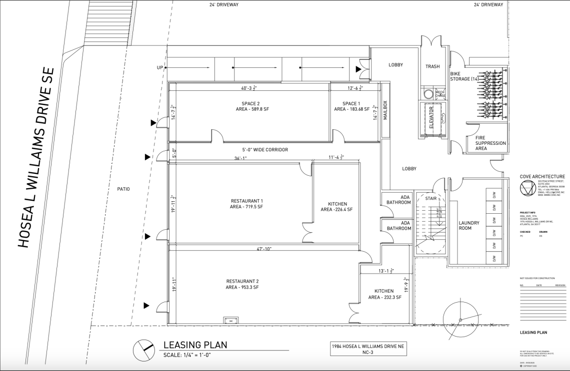
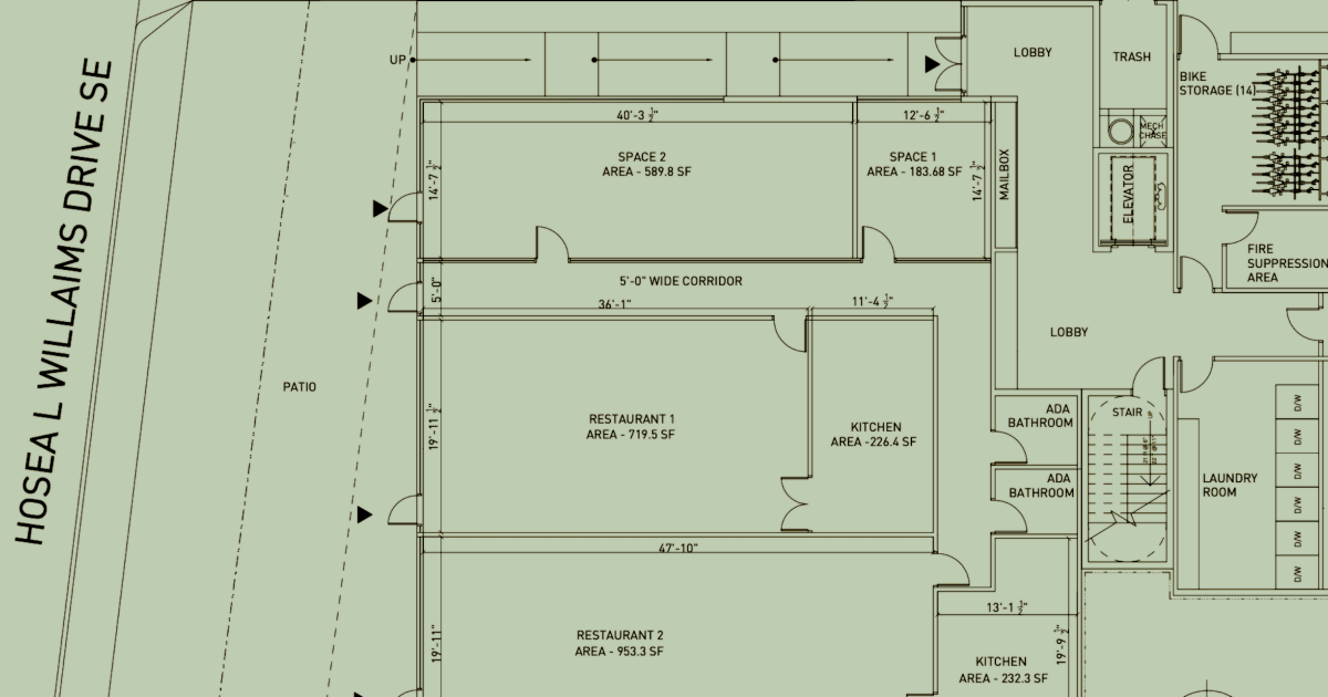
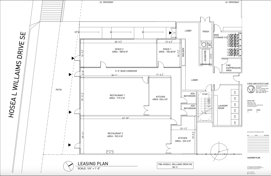
The four-story building would include about 6,500 square feet of non-residential spaces, including restaurant slots of roughly 953 and 719 square feet. A large patio would span the full front of the building.
Absent from the site plans is any dedicated parking. The ground level does include a room for bike storage with what appears to be 14 spaces. We’ve reached out to Stryant officials for more details and will update this story with any additional info that comes.
Breakdown of site plans for ground-level uses at the 1976 Hosea proposal. Stryant/Cove Architecture/1976hosea.com
The apartments were described in an August announcement as “professionally managed micro units” to be set beneath a solar-shaded rooftop event area. They’ll be managed by co-living platform PadSplit, and all will target rents reserved for tenants earning at most 80 percent of the Area Median Income.
Sugarman has said the permitting process will determine when construction can begin, and that the building process is expected to take 18 months.
The office portion will be Stryant’s customer meeting space but will also be available for other local businesses to rent, Sugarman told Urbanize Atlanta last year. The half-acre site was long home to Anna’s BBQ and another barbecue restaurant more recently.
According to project designers, sustainable features beyond the solar panels call for both EV charging stations and no parking requirements, a means to encourage alternate forms of transportation for a site served by city buses and bike lanes.
How the mixed-use proposal with retail, offices, and micro housing would front Hosea Williams Drive in the heart of Kirkwood's commercial district. Courtesy of Stryant
The 1976 Hosea L. Williams Drive lot in question, as seen from the same angle as the lone available rendering, in January 2025. Google Maps
As with many densifying cities, minimum parking requirements have been a hot topic in Atlanta.
An overhaul of city zoning laws removed parking minimum restrictions in 2024 for developments in the Beltline Overlay District, or a zone spanning roughly ½-mile on either side of the 22-mile trail loop.
Legislation to expand the scope of removed parking minimums gained traction last year but hasn’t been enacted.
Parking minimums imposed by cities dictate the amount of off-street parking—oftentimes a costly component of new projects—that developers must build, based on certain formulas, such as one parking space per bedroom. The theory goes that less space (and less upfront money from builders) devoted to parking will allow more room for less expensive housing, restaurants, shops, offices, and other vibrant uses, while encouraging neighborhood planning focused on pedestrians, not drivers.
A commenter on these pages in earlier coverage of the 1976 Hosea project boiled down a typical counterargument as follows:
“If [onsite parking is] not a deck in the back, they're delusional. Yes, Kirkwood is walkable but only to a very limited extent. Basic essentials are still miles away and there is no reality in which Kirkwood's downtown can functionally support even 25 additional resident cars without metering the current on-street parking to facilitate the proximity parking business[es] rely on.”
Atlanta-based tech company Cove employed its AI-powered feasibility tool called Vitras.ai to help design the Kirkwood project. Each planned apartment will be about 340 square feet, architects have said.
Anna’s, the barbecue joint, was in business in Kirkwood for nine years but shuttered in 2022 when owner Anna Phelps decided to retire and open a food truck. Stryant closed on the property in May for $910,000, per listings.
Across the street from Stryant’s proposal, upscale seafood restaurant Argonaut announced this week it’s changing concepts to Jolene Jolene, billed as “Atlanta’s home for all things women’s sports,” which had previously operated at Pullman Yards.
Elsewhere on the eastside, Stryant’s recent projects have included affordable housing ventures Ralph David House and an infill corner build at 111 Moreland Ave., both in Reynoldstown. Other Stryant ventures in recent years include the adaptive-reuse conversion of the 1912 George W. Adair School in Adair Park.
Around the corner from the downtown Kirkwood proposal, Stryant’s affordable-housing plans for formerly homeless residents age 62 and older on church-owned property have encountered pushback at the neighborhood level. That development, which calls for 47 micro apartments, is set to come before the Atlanta Zoning Review Board next week.
...
Follow us on social media:
Twitter / Facebook/and now: Instagram
• Kirkwood news, discussion (Urbanize Atlanta)
